SCHÜCO

FOCUSING

Sostenibilità, prestazioni e design moderno in un sistema equilibrato per l’architettura contemporanea.

 
 

Dettagli tecnici SCHÜCO FOCUSING

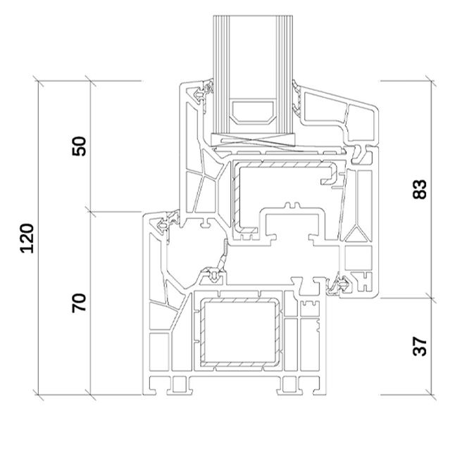
70 mm

Profondità telaio

120 kg

Peso massimo dell’anta

Fino a 54 mm

Spessore del vetro

2-3

Guarnizioni

Uf 1.1 w/m2k

Coefficiente termico del profilo

Uw 0.8 w/m2k

Coefficiente termico del profilo

5

Camere

2/3

Lastre di vetro

Fino RC2

Protezione

Squared

Design

Fino a 48 dB

Isolamento acustico

Ug ≥ 0.6 w/m2k

Coefficiente di vetro

Innovativo. Lineare. Sostenibile.

Schüco FocusIng e una sistema da 76 mm di profondità dell’anta, che unisce prestazioni tecniche elevate a un design contemporaneo. Le linee moderne, pulite e i profili sottili si integrano armoniosamente nell’architettura attuale.

Focus sulla sostenibilità

Focus sulle prestazioni ottimali

Focus sul design

Schüco FocusIng è un sistema in PVC progettato per progetti di ristrutturazione e nuove costruzioni, che combina design essenziale e prestazioni elevate.

Le linee moderne e pulite si integrano perfettamente nell’architettura contemporanea, mentre la configurazione con due o tre livelli di guarnizione consente di ottimizzare isolamento termico, acustico e tenuta agli agenti atmosferici.

Il sistema è sviluppato con un’attenzione concreta alla sostenibilità: utilizza materiali con un’elevata percentuale di riciclato ed è completamente riciclabile a fine vita, contribuendo alla riduzione delle emissioni di CO₂ dell’edificio.

La struttura a 5/6 camere garantisce ottimi valori di isolamento, con possibilità di vetrocamera tripla fino a 54 mm e valori Uw inferiori a 0,80 W/(m²K).

Grazie alla sua versatilità, FocusIng si adatta a diverse soluzioni – finestre, portefinestre e sistemi scorrevoli – rendendolo ideale per molteplici contesti progettuali.

Perché scegliere il Sistema Schüco FocusIng

Una soluzione completa, che unisce efficienza, flessibilità e libertà progettuale.

Dal punto di vista estetico, il sistema offre un design minimale e numerose possibilità di personalizzazione, con oltre 300 finiture disponibili.

Schüco FocusIng è stato sviluppato per un utilizzo responsabile delle risorse, integrando un’elevata percentuale di materiale riciclato nel nucleo interno ed essendo completamente riciclabile a fine vita.

Questo contribuisce alla riduzione delle emissioni di CO₂ dell’involucro edilizio.

I serramenti in PVC della serie FocusIng permettono inoltre di soddisfare i requisiti delle principali certificazioni per edifici sostenibili, tra cui QNG, DGNB, LEED e BREEAM.

Il nuovo
distanziatore MULTITECH G

MULTITECH G è un nuovo distanziatore, realizzato con le ultime tecnologie, che gli conferisce grandi prestazioni tecniche

Motivi per cui il distanziale MULTITECH G fa davvero la differenza:

Migliorare il pacchetto vetro in termini di trasmittanza termica, ma anche esteticamente scegliendo il colore giusto per il profilo della falegnameria.

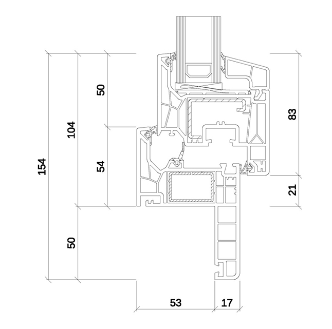
Sezione profilo Schüco FocusIng

Torna in alto